H108X活塞式電動遙控閥
產品概述
H108X活塞式電動遙控閥(水力控製閥)主要用於安裝在各類給水係統的管道上,根據電信號或手動操作,使閥門打開或關閉。準確快速的控製反應是H108X活塞式電動遙控閥較大優點。上海賽泰泵閥有限公司生產的H108X活塞式電動遙控閥關閉速度可調,閥門平穩關閉而不會產生壓力波動,采用三向電磁閥,維護簡單。

H108X活塞式電動遙控閥

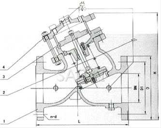
H108X活塞式電動遙控閥結構圖
典型安裝圖

H108X活塞式電動遙控閥典型安裝示意圖
主要外形尺寸
| DN | 50 | 65 | 80 | 100 | 125 | 150 | 200 | 250 | 300 | 350 | 400 | 450 | 500 | 600 | 700 | 800 | 900 | 1000 | 1200 | 1400 |
| L | 205 | 216 | 250 | 320 | 365 | 415 | 500 | 605 | 698 | 787 | 914 | 978 | 978 | 1150 | 1300 | 1450 | 1650 | 1800 | 2000 | 2350 |
| H | 293 | 328 | 364 | 418 | 481 | 543 | 673 | 729 | 927 | 957 | 1188 | 1218 | 1600 | 1800 | 2000 | 2300 | 2600 | 2700 | 2860 | 3200 |
注:
1.本網頁的H108X活塞式電動遙控閥結構、結構圖、尺寸、參數等主要性能參數,以及安裝尺寸圖、安裝尺寸表均隻適用於參考,詳細CAD圖、安裝圖、以及產品說明書請向賽泰閥門營銷人員索取。
2.由於編輯水平有限,錯誤和不妥之處在所難免,真誠希望您批評指正。
H108X活塞式電動遙控閥相關產品
下一頁:活塞可調式減壓閥
返回至本係列目錄:水力控製閥
上一頁:活塞可調式減壓穩壓閥