複合式排氣閥
複合式排氣閥特點用途
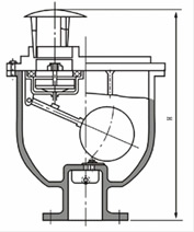
CARX複合式排氣閥(水力控製閥)的閥體為橢圓桶狀,閥門內件包括不鏽鋼浮球、gangganjifaban。fuheshipaiqifayibananzhuangzaibengchukouchuhuopeishuiguanxianzhong,yonglaipaichujijizaiguanzhongdekongqi,yitigaoguanxianjibubengdeshiyongxiaolv,dangguanneiyidanchanshengfuyashi,fuheshipaiqifakexunsuxiruwaijiekongqi,yifangzhiguanxianyinfuyaersunhuai。shanghaisaitaibengfayouxiangongsishengchandefuheshipaiqifadeshiyongjiezhiwendu:0~80℃。

CARX複合式排氣閥結構圖2

CARX複合式排氣閥結構圖1

CARX複合式排氣閥
複合式排氣閥工作原理
dangguanneikaishizhushuishi,fuheshipaiqifafabanchuzaikaiqideweizhi,jinxingdaliangpaiqi,dangkongqipaiwanshi,faneichongmanshui,fuqiushangshengbingdaidongfabanguanbi,tingzhipaiqi,dangguanneishuizhengchangshusongshi,ruyoushaoliangkongqijujizaifaneidaoxiangdangdechengdu,faneishuiweixiajiang,cishikongqiyouxiaokongpaichu。dangshuibengtingzhishi,guanneishuiliukonghuoyuguanneichanshengfuya,cishisaitouxunsukaiqi,xirukongqi,quebaoguanxiananquan。
複合式排氣閥主要參數
| 型號 | 試驗壓力(MPa) | 公稱通徑 | 連接形式 | 公稱壓力DN(MPa) | |
| 殼體實驗壓力 | 密封實驗壓力 | ||||
| CARX-10 | 1.5 | 1.1 | 25-32 | 內螺紋 | 1.0 |
| 50-200 | 法蘭 | 1.6 | |||
複合式排氣閥主要零件材料
| 零件名稱 | 閥體 | 閥蓋 | 浮球 | 杠杆架 | 杠杆 | 塞頭 |
| 材料 | 球墨鑄鐵 | 球墨鑄鐵 | 不鏽鋼 | 不鏽鋼 | 不鏽鋼 | 鉛青鋼 |
複合式排氣閥主要外形尺寸:(法蘭連接尺寸按BG4216-84標準)
| 公稱通徑 DN | 尺 寸 mm | ||||
| L | L1 | H | Z | d | |
| 25 | 280 | 176 | 330 | - | - |
| 32 | 280 | 176 | 330 | - | - |
| 50 | 360 | 208 | 475 | 4 | 17.5 |
| 65 | 360 | 208 | 475 | 4 | 17.5 |
| 80 | 400 | 244 | 552 | 8 | 17.5 |
| 100 | 465 | 275 | 623 | 8 | 17.5 |
| 150 | 537 | 332 | 686 | 8 | 22 |
| 200 | 537 | 332 | 868 | 8/12 | 22 |
注:
1.本網頁的複合式排氣閥結構、結構圖、尺寸、參數等主要性能參數,以及安裝尺寸圖、安裝尺寸表均隻適用於參考,詳細CAD圖、安裝圖、以及產品說明書請向賽泰閥門營銷人員索取。
2.由於編輯水平有限,錯誤和不妥之處在所難免,真誠希望您批評指正。
複合式排氣閥相關產品
下一頁:活塞式快開排泥閥
返回至本係列目錄:水力控製閥
上一頁:微量排氣閥