銅法蘭球閥

銅法蘭球閥

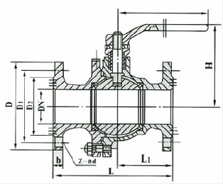
銅法蘭球閥結構圖
主要性能規範
| 型 號 | 公稱壓力 PN(Mpa) | 試驗壓力PS(Mpa) | 適用溫度 ℃ | 適用介質 | ||
| 殼 體 | 密封(液) | 密封(氣) | ||||
| Q41T-16T | 1.6 | 2.4 | 1.76 | 0.96 | 聚四氟乙烯: ≤150;對位 聚苯:≤250 | 水、蒸汽、油品 |
| Q41T-25T | 2.5 | 3.75 | 2.75 | 1.5 | 水、蒸汽、油品 | |
| Q41T-40T | 4.0 | 6 | 4.4 | 2.4 | 硝酸類 | |
主要尺寸重量
| 公稱通 徑DN(?L) | 尺 寸 ?L | |||||||||||
| L | L1 | D | D1 | D2 | b | Z-фd | H | Lo | ||||
| 係列1 | 係列2 | 係列3 | 係列4 | |||||||||
| 15 | 130 | 140 | 130 | 130 | 57 | 95 | 65 | 45 | 16 | 4-ф14 | 103 | 100 |
| 20 | 140 | 152 | 150 | 150 | 62 | 105 | 75 | 55 | 16 | 4-ф14 | 112 | 160 |
| 25 | 150 | 165 | 160 | 160 | 71 | 115 | 85 | 65 | 16 | 4-ф14 | 123 | 160 |
| 32 | 165 | 178 | 180 | 165 | 65 | 135 | 100 | 78 | 18 | 4-ф18 | 150 | 250 |
| 40 | 180 | 190 | 200 | 180 | 71 | 145 | 110 | 85 | 18 | 4-ф18 | 156 | 250 |
| 50 | 200 | 216 | 230 | 220 | 85 | 160 | 125 | 100 | 20 | 4-ф18 | 172 | 350 |
| 65 | 220 | 241 | 290 | 250 | 100 | 180 | 145 | 120 | 22 | 8-ф18 | 197 | 350 |
| 80 | 250 | 283 | 310 | 280 | 114 | 195 | 160 | 135 | 22 | 8-ф18 | 222 | 450 |
| 100 | 320 | 305 | 350 | 320 | 130 | 230 | 190 | 160 | 24 | 8-ф23 | 253 | 450 |
| 125 | 400 | 381 | 400 | 320 | 190 | 270 | 220 | 188 | 28 | 8-ф25 | 286 | 600 |
| 150 | 400 | 403 | 180 | 360 | 190 | 300 | 250 | 218 | 30 | 8-ф25 | 275 | 800 |
| 200 | - | 502 | 600 | - | - | - | - | - | - | - | - | |
注:
1.本網頁的銅法蘭球閥結構、結構圖、尺寸、參數等主要性能參數,以及安裝尺寸圖、安裝尺寸表均隻適用於參考,詳細CAD圖、安裝圖、以及產品說明書請向賽泰閥門營銷人員索取。
2.由於編輯水平有限,錯誤和不妥之處在所難免,真誠希望您批評指正。
銅法蘭球閥相關產品
下一頁:銅內螺紋球閥
返回至本係列目錄:球閥
上一頁:QY-3氣源管路球閥