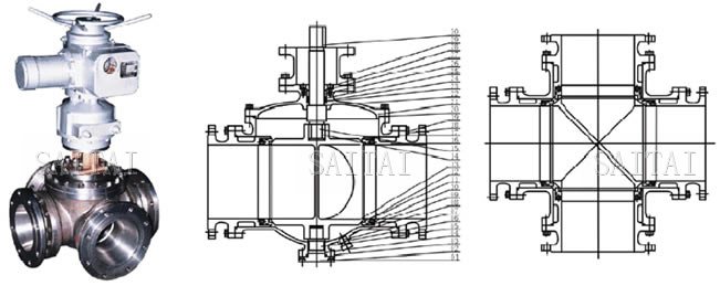
四通四密封球閥

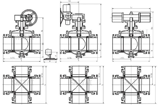
四通四密封球閥外形尺寸圖
主要零件材料
| 序號 | 材料 標準 零件名稱 |
材料牌號 | 序 號 |
材料 標準 零件名稱 |
材料牌號 | ||||||||||
| 碳鋼 | 不鏽鋼 | 碳鋼 | 不鏽鋼 | ||||||||||||
| GB | ASTM | GB | ASTM | GB | ASTM | GB | ASTM | ||||||||
| 01 | 底蓋 | 25 | A105 | 1Cr18Ni9Ti 1Cr18Ni12Mo2Ti |
F304/F316/ F304L/F316L |
17 | 墊圈 | 氟橡膠 ;PTFE ,金屬夾石墨 | |||||||
| 02 | 底蓋螺釘 | 25CrMoA | A193-B7 | 1Cr17Ni2 | A193-B7M | 18 | 螺母 | 45 | A194-2H | 0Cr18Ni | A194-8M | ||||
| 03 | 墊圈 | 氟橡膠 ;PTFE ,金屬夾石墨 | 19 | 雙頭螺柱 | 35CrMoA | A193-B7 | 1Cr17Ni2 | A193-B8M | |||||||
| 04 | 止推軸承 | 金屬夾PTFE | 20 | 墊圈 | 氟橡膠;PTFE,金屬夾石墨 | ||||||||||
| 05 | 下閥杆 | 2Cr13 | A276-410 | 1Cr18Ni9Ti 1Cr18Ni12Mo2Ti |
F304/F316/ F304L/F316L |
21 | 閥蓋 | WCB | A216-WCB | ZG1Cr18Ni9Ti ZG1Cr18Ni12Mo2Ti |
CF8/CF8M/ CF3/CF3M |
||||
| 06 | 下閥杆軸承 | 金屬夾PTFE | 22 | 止推軸承 | PTFE | PTFE | PTFE | PTFE | |||||||
| 07 | 排汙塞 | 2Cr13 | A276-410 | 1Cr18Ni9Ti 1Cr18Ni12Mo2Ti |
F304/F316/ F304L/F316L |
23 | 壓環 | 25鍍鉻 | A105鍍鉻 | 1Cr18Ni9Ti 1Cr18Ni12Mo2Ti |
F304/F316/ F304L/F316L |
||||
| 08 | 閥體 | WCB | A216-WCB | ZG1Cr18Ni9Ti ZG1Cr18Ni12Mo2Ti |
CF8/CF8M/ CF3/CF3M |
24 | 填料函0形圈 | 氟橡膠 | 氟橡膠 | 氟橡膠 | 氟橡膠 | ||||
| 09 | 閥座O形圈 | 氟橡膠 | 氟橡膠 | 氟橡膠 | 氟橡膠 | 25 | 閥杆 “O”形圈 |
氟橡膠 | 氟橡膠 | 氟橡膠 | 氟橡膠 | ||||
| 10 | 閥座彈簧 | 17-7PH | 17-7PH | 17-7PH | 17-7PH | 26 | 閥杆填料 | 石墨 | |||||||
| 11 | 閥座 | PTFE;PPL | PTFE;PPL | PTFE;PPL | PTFE;PPL | 27 | 填料壓蓋 | 25鍍鉻 | A105鍍鉻 | 1Cr18Ni9Ti 1Cr18Ni12Mo2Ti |
F304/F316/ F304L/F316L |
||||
| 12 | 閥座支承圈 | 25鍍鉻 | A105鍍鉻 | 1Cr18Ni9Ti 1Cr18Ni12Mo2Ti |
F304/F316/ F304L/F316L |
28 | 螺釘 | 35CrMoA | A193-B7 | 1Cr17Ni2 | A193-B8M | ||||
| 13 | 球體 | 1Cr18Ni9Ti | 304 | 1Cr18Ni9Ti 1Cr18Ni12Mo2Ti |
F304/F316/ F304L/F316L |
29 | 支架 | WCB | WCB | WCB | WCB | ||||
| 14 | 球體鍵 | 40Cr | 40Cr | 1Cr17Ni2 | 1Cr17Ni2 | 30 | 鍵 | 40Cr | 40Cr | 1Cr17Ni2 | 1Cr17Ni2 | ||||
| 15 | 上閥體 | 2Cr13 | A276-410 | 1Cr18Ni9Ti 1Cr18Ni12Mo2Ti |
F304/F316/ F304L/F316L |
||||||||||
| 16 | 側蓋 | WCB | A216-WCB | ZG1Cr18Ni9Ti ZG1Cr18Ni12Mo2Ti |
CF8/CF8M/ CF3/CF3M |
||||||||||

四通四密封球閥外形結構圖

四通四密封球閥外形示意圖
該四通球閥,一閥實現正反供水切換,每轉90°,供水方式切換一次,以前需四個閥門,供水時閥1、4開啟,閥2、3關閉;反向供水時閥2、3開啟,閥1、4關閉,現用一台四通球閥替代,操作方便。
應用範圍
- 設計、製造 按GB12237-89
- 結構長度按 SDV-2002
- 連接法蘭:JB79-94
- 閥門檢查和試驗按GB13927-89
PN1.6 MPa主要連接尺寸及重量
| 公稱通徑DN | 150 | 20×150 | 200 | 250×200 | 250 | 300×250 | 300 | 350×300 | 350 | 400×350 | 400 | 450×400 | 450 | 500×450 | 500 | 600×500 | 600 | |
| 球孔d1 | 150 | 150 | 200 | 200 | 250 | 250 | 300 | 300 | 350 | 350 | 400 | 400 | 450 | 450 | 500 | 500 | 600 | |
| L | 570 | 570 | 670 | 670 | 760 | 760 | 850 | 850 | 980 | 980 | 1080 | 1080 | 1220 | 1220 | 1360 | 1360 | 1750 | |
| H | 219 | 219 | 273 | 273 | 360 | 360 | 395 | 395 | 430 | 430 | 470 | 470 | 550 | 550 | 580 | 580 | 700 | |
| 手動 | H1 | 330 | 330 | 398 | 398 | 495 | 495 | 580 | 580 | 625 | 625 | 670 | 670 | 698 | 698 | 840 | 840 | 1050 |
| E | - | - | 116 | 116 | 1169 | 116 | 171 | 171 | 171 | 171 | 257 | 257 | 257 | 257 | 257 | 257 | 150 | |
| F | - | - | 350 | 350 | 350 | 350 | 400 | 400 | 420 | 420 | 400 | 400 | 420 | 420 | 400 | 400 | 410 | |
| W | 1050 | 1050 | 600 | 600 | 600 | 600 | 800 | 800 | 800 | 800 | 800 | 800 | 800 | 800 | 800 | 800 | 800 | |
| 電動 | H2 | 554 | 554 | 600 | 600 | 652 | 652 | 760 | 760 | 770 | 770 | 830 | 830 | - | - | 940 | 940 | 1020 |
| L1 | 235 | 235 | 235 | 235 | 235 | 235 | 259 | 259 | 400 | 400 | 400 | 400 | - | - | 410 | 410 | 410 | |
| 氣動 | H3 | 666 | 666 | 735 | 736 | 926 | 926 | 1059 | 1059 | 1127 | 1127 | 1393 | 1393 | 1468 | 1468 | 1538 | 1538 | 1370 |
| L2 | 776 | 776 | 776 | 776 | 776 | 776 | 1060 | 1060 | 1060 | 1060 | 1360 | 1360 | 1360 | 1360 | 1360 | 1360 | 2840 | |
注:
1.本網頁的四通四密封球閥結構、結構圖、尺寸、參數等主要性能參數,以及安裝尺寸圖、安裝尺寸表均隻適用於參考,詳細CAD圖、安裝圖、以及產品說明書請向賽泰閥門營銷人員索取。
2.由於編輯水平有限,錯誤和不妥之處在所難免,真誠希望您批評指正。
四通四密封球閥相關產品
下一頁:硬密封浮動球閥
返回至本係列目錄:球閥
上一頁:三通四密封球閥