XWJ型無堵塞紙漿泵-紙漿泵
XWJ型無堵塞紙漿泵是一種新型、節能型紙漿泵,經實際使用,具有高效、無或少泄露、抗堵塞性好、運行平穩、可靠性高、結構緊湊等特點。主要體現在以下幾個方麵:采用半開或全開式葉輪、耐磨板與葉輪前側間隙可調、軸封主要采用機械密封並選用高精度軸承(D級精度)及優質軸材料等,因此XWJ型無堵塞紙漿泵是您理想的"好幫手",同時您的成功也是我們始終的追求。XWJ型無堵塞紙漿泵可廣泛適用於輕工、造紙行業中溫度低於110°C,弄地低於6%漿料的輸送,同時也可用於工業和城市給水、排水等場合。

XWJ型無堵塞紙漿泵
無堵塞紙漿泵結構簡介
XWJ型紙漿泵為單級單吸懸臂式結構,主要由泵體、葉輪、泵蓋、耐磨板及懸架部件組成;
從電機端看,電機為順時針方向旋轉,且泵為軸向吸入,徑向(中間)排出;
泵為後開門結構,維修時可不必拆卸進出管路;
泵軸由兩個高精度滾動軸承支撐,采用稀油潤滑(20#機油);
軸封采用機械密封或填料兩種型式;
耐磨板與葉輪前側間隙可通過調節螺杆進行調節,以保持葉輪連續運行的高效性;
泵和電機由柱銷聯軸器直聯傳動。
該泵的各過流部件材質為HT200、QT450-10、ZG35或ZG1Cr18NI9Ti。
軸材質為40CR或3Cr13。
性能範圍
流量:20∽4003/h 轉速:1450r/min
揚程:10∽32m 功率:1.5∽55Kw。
無堵塞紙漿泵型號意義

無堵塞紙漿泵型號意義
無堵塞紙漿泵性能參數
| 泵型號 | 流量(m3/h) | 揚程(m) | 轉速(r/min) | 配套電機型號及功率(KW) | |
| 80XWJ25-12.5 | 25 | 12.5 | 1450 | Y100L1-4/2.2 | |
| A | 20 | 10 | Y90l-4/1.5 | ||
| 80XWJ25-20 | 25 | 20 | 1450 | Y100L2-4/3 | |
| A | 20 | 16 | Y100L-4/2.2 | ||
| 100XWJ50-20 | 50 | 20 | 1450 | Y132S-4/5.5 | |
| A | 45 | 18 | Y112M-4/4 | ||
| B | 40 | 16 | Y112M-4/4 | ||
| 100XWJ50-32 | 50 | 32 | 1450 | Y160M-4/11 | |
| A | 40 | 26 | Y132S-4/5.5 | ||
| 125XWJ100-20 | 100 | 20 | 1450 | Y160M-4/11 | |
| A | 90 | 18 | Y132S-4/7.5 | ||
| B | 80 | 16 | Y132S-4/7.5 | ||
| 125XWJ100-32 | 100 | 32 | 1450 | Y160M-4/15 | |
| A | 90 | 28 | Y160M-4/11 | ||
| B | 80 | 26 | Y160M-4/11 | ||
| 150XWJ200-20 | 200 | 20 | 1450 | Y180M-4/18.5 | |
| A | 180 | 18 | Y160M-4/15 | ||
| B | 160 | 16 | Y160M-4/11 | ||
| 150XWJ200-32 | 200 | 32 | 1450 | Y200L-4/30 | |
| A | 187 | 28 | Y180M-4/22 | ||
| B | 170 | 24 | Y180M-4/18.5 | ||
| 200XWJ400-20 | 400 | 20 | 1450 | Y225S-4/37 | |
| A | 380 | 18 | Y200L-4/30 | ||
| B | 340 | 15 | Y180L-4/22 | ||
| 200XWJ400-32 | 400 | 32 | 1450 | Y250M-4/55 | |
| A | 375 | 28 | Y225M-4/45 | ||
| B | 340 | 24 | Y225S-4/37 | ||
無堵塞紙漿泵結構圖

無堵塞紙漿泵結構圖
| 1 | 泵體 | 2 | 調節螺杆 | 3 | 耐磨板 | 4 | 葉輪 | 5 | O形圈 | 6 | 泵蓋 | 7 | 軟管接頭 | ||||
| 8 | 填料或機械密封 | 9 | 懸架部件 | 10 | 支架 | 11 | 擋水圈 | 12 | 葉輪螺母 | ||||||||
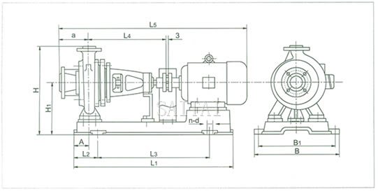
無堵塞紙漿泵機組外形及安裝尺寸圖及安裝尺寸表

無堵塞紙漿泵外形尺寸圖
| 泵型號 | 配套電機型號及功率(KW) | A | L1 | L2 | L3 | a | L4 | L5 | B1 | B | H1 | H | n-d |
| 80XWJ25-12.5 | Y100L1-4/2.2 | 60 | 768 | 108 | 550 | 110 | 371 | 847 | 310 | 350 | 215 | 425 | 4-ф18 |
| 80XWJ25-12.5A | Y90L-4/1.5 | 807 | |||||||||||
| 80XWJ25-20 | Y100L2-4/3 | 110 | 980 | 120 | 740 | 125 | 491 | 847 | 440 | 490 | 255 | 490 | |
| 80XWJ25-20A | Y100L1-4/2.2 | ||||||||||||
| 100XWJ50-20 | Y132S-4/5.5 | 90 | 920 | 130 | 660 | 125 | 472 | 1077 | 440 | 490 | 270 | 520 | |
| 100XWJ50-20A | Y112M-4/4 | 1002 | |||||||||||
| 100XWJ50-20B | Y112M-4/4 | ||||||||||||
| 100XWJ50-32 | Y160M-4/11 | 1043 | 125 | 740 | 1207 | 460 | 510 | 300 | 580 | ||||
| 100XWJ50-32A | Y132S-4/5.5 | 990 | 1077 | ||||||||||
| 125XWJ100-20 | Y160M-4/11 | 1200 | 180 | 840 | 140 | 502 | 1252 | 300 | 580 | 4-ф24 | |||
| 125XWJ100-20A | Y132M-4/7.5 | 990 | 125 | 740 | 1162 | 4-ф18 | |||||||
| 125XWJ100-20B | Y132M-4/7.5 | ||||||||||||
| 125XWJ100-32 | Y160L-4/15 | 1200 | 180 | 840 | 1297 | 325 | 640 | 4-ф24 | |||||
| 125XWJ100-32A | Y160M-4/11 | 1252 | |||||||||||
| 125XWJ100-32B | Y160M-4/11 | ||||||||||||
| 150XWJ200-20 | Y180M-4/18.5 | 150 | 1327 | 325 | 680 | ||||||||
| 150XWJ200-20A | Y160L-4/15 | 1307 | |||||||||||
| 150XWJ200-20B | Y160M-4/11 | 1262 | |||||||||||
| 150XWJ200-32 | Y200L-4/30 | 1432 | 375 | 730 | |||||||||
| 150XWJ200-32A | Y180L-4/22 | 1367 | |||||||||||
| 150XWJ200-32B | Y180M-4/18.5 | 1327 | |||||||||||
| 200XWJ400-20 | Y225S-4/37 | 115 | 1500 | 200 | 1050 | 350 | 652 | 1487 | 630 | 690 | 465 | 865 | 4-ф28 |
| 200XWJ400-20A | Y200L-4/30 | 1442 | |||||||||||
| 200XWJ400-20B | Y180L-4/22 | 1377 | |||||||||||
| 200XWJ400-32 | Y250M-4/55 | 115 | 1500 | 200 | 1050 | 350 | 1717 | ||||||
| 200XWJ400-32A | Y225M-4/45 | 1632 | |||||||||||
| 200XWJ400-32B | Y225S-4/37 | 1607 |
注:
1.本網頁的XWJ型無堵塞紙漿泵結構、結構圖、尺寸、參數、流量、揚程、電機轉速等主要性能參數,以及安裝尺寸圖、安裝尺寸表均隻適用於參考,詳細CAD圖、安裝圖、以及產品說明書請向賽泰水泵營銷人員索取。
2.由於編輯水平有限,錯誤和不妥之處在所難免,真誠希望您批評指正。
XWJ型無堵塞紙漿泵相關產品
下一頁:PN、PNL型汙水泥漿泵
返回至本係列目錄:離心泵
上一頁:LX型螺旋離心泵