氧氣截止閥

氧氣截止閥

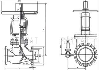
氧氣截止閥外形尺寸圖
產品概述
氧氣截止閥是(shi)專(zhuan)門(men)適(shi)用(yong)於(yu)氧(yang)氣(qi)管(guan)路(lu)的(de)專(zhuan)用(yong)閥(fa)門(men),根(gen)據(ju)氧(yang)氣(qi)管(guan)網(wang)運(yun)行(xing)特(te)點(dian)以(yi)及(ji)考(kao)慮(lv)氧(yang)氣(qi)介(jie)質(zhi)的(de)易(yi)燃(ran)易(yi)爆(bao)的(de)特(te)性(xing),以(yi)安(an)全(quan)可(ke)靠(kao)運(yun)行(xing)和(he)性(xing)能(neng)優(you)越(yue)為(wei)設(she)計(ji)原(yuan)則(ze),並(bing)參(can)照(zhao)中(zhong)國(guo)冶(ye)金(jin)工(gong)業(ye)部(bu)製(zhi)定(ding)的(de)《氧氣安全規程》的規定而設計、製造的確保氧氣管網安全運行的專用截止閥。氧氣截止閥的主體材料選用不鏽鋼或阻燃性極好的銅合金,密封麵為本體或堆焊D802,其餘內件采用不鏽鋼或銅合金;傳動部位的潤滑采用不可燃的潤滑脂, bingbiaoyoumingxiandejinyoubiaoji。yangqijiezhifazaijiegoushang,zhijiacaiyongquanbifeng,bingyoudaochujingdianzhuangzhi,faganshangpeiyoufangchenmao。shanghaisaitaifamenyouxiangongsishengchandedeyangqiguanluzhuanyongjiezhifafa,zitoufangshichangyilaishenshougeda、中型鋼鐵廠、製氧廠、石化廠氧氣管網的信賴!
產品結構特點:
- 對於公稱壓力PN≥1.6MPa、DNl25~200采用內旁通結構;DN250~500采用帶外旁通閥結構。其目的是減小閥前、閥後的壓力差以避免高流速、高衝刷以及防止產生高溫,從而保證了氧氣管網的安全運行,同時也減小了操作力矩。
- 氧氣截止閥介質流向:PN≥1.6MPa、DN≤100介質由閥瓣下方流入閥瓣上方(即低進高出),DN≥125介質由閥瓣卜方流入下方(高進低出)o對於DN≥125的閥門采用介質高進低出的流向,一方麵足內旁通閥結構上的需要,另一方麵由於介質壓力的作用使閥門的關閉力大大減小。
- 氧氣截止閥設有導靜電安全裝置,可避免因靜電產生火花。 4、氧yang氣qi截jie止zhi閥fa與yu普pu通tong截jie止zhi閥fa相xiang比bi,氧yang氣qi管guan路lu用yong截jie止zhi閥fa的de支zhi架jia部bu分fen采cai用yong全quan封feng閉bi式shi結jie構gou,且qie壓ya緊jin填tian料liao時shi可ke以yi打da開kai支zhi架jia上shang的de防fang護hu蓋gai板ban,起qi到dao了le防fang油you防fang塵chen的de作zuo用yong。並bing有you明ming顯xian的de禁jin油you標biao記ji。
- 全部零件采用嚴格的脫脂處理
主要性能規範
| 公稱壓力(PN) | 強度試驗壓力(MPa) | 氣密封試驗壓力(MPa) | 適用介質 | 適用溫度 |
| 水 | 氣 | 氧氣 | 常溫 | |
| 1.6 | 2.4 | 1.6 | ||
| 2.5 | 3.8 | 2.5 | ||
| 3.0 | 4.5 | 3.0 | ||
| 4.0 | 6.0 | 4.0 |
主要零件材料
| 零件名稱 | 材料 |
| 閥體、閥蓋、閥瓣 | 鑄鉻鎳鈦不鏽鋼、銅合金 |
| 閥杆 | 鉻鎳不鏽鋼 |
| 閥杆螺母 | 青銅 |
主要外型尺寸、連接尺寸及重量
JY41W-16P JY41Y-16P JY41W-16T
| DN | L | D | D1 | D2 | b | f | Z-d | H | H1 | DO | L1 | 重量(kg) |
| 15 | 130 | 95 | 65 | 45 | 14 | 2 | 4-14 | 240 | 100 | 6 | ||
| 20 | 150 | 105 | 75 | 55 | 14 | 2 | 4-14 | 270 | 100 | 8 | ||
| 25 | 160 | 115 | 85 | 65 | 14 | 2 | 4-14 | 270 | 125 | 10 | ||
| 32 | 180 | 135 | 100 | 78 | 16 | 2 | 4-18 | 280 | 160 | 14 | ||
| 40 | 200 | 145 | 110 | 85 | 16 | 3 | 4-18 | 350 | 160 | 20 | ||
| 50 | 230 | 160 | 125 | 100 | 16 | 3 | 4-18 | 400 | 320 | 35 | ||
| 65 | 290 | 180 | 145 | 120 | 18 | 3 | 4-18 | 530 | 360 | 50 | ||
| 80 | 310 | 195 | 160 | 135 | 20 | 3 | 8-18 | 560 | 400 | 65 | ||
| 100 | 350 | 215 | 180 | 155 | 20 | 3 | 8-18 | 618 | 450 | 80 | ||
| 125 | 400 | 245 | 210 | 185 | 99 | 3 | 8-18 | 675 | 450 | 106 | ||
| 150 | 480 | 280 | 240 | 210 | 24 | 3 | 8-23 | 743 | 560 | 125 | ||
| 200 | 600 | 335 | 295 | 265 | 26 | 3 | 12-23 | 850 | 640 | 254 | ||
| 250 | 650 | 405 | 355 | 320 | 30 | 3 | 12-25 | 975 | 270 | 720 | 380 | 418 |
| 300 | 750 | 460 | 410 | 375 | 30 | 4 | 12-25 | 1115 | 270 | 800 | 415 | 502 |
| 400 | 950 | 580 | 525 | 485 | 36 | 4 | 16-30 | 1380 | 280 | 900 | 465 | 980 |
| 450 | 1050 | 640 | 585 | 545 | 40 | 4 | 20-30 | 1530 | 350 | 495 | 1200 | |
| 500 | 1150 | 705 | 650 | 608 | 44 | 4 | 20-34 | 1700 | 400 | 525 | 1300 |
JY41W-25P JY41Y-25P JY41W-25T
| DN | I | D | D1 | D2 | b | f | Z-d | H | H1 | DO | L1 | 重量(kg) |
| 15 | 130 | 95 | 65 | 45 | 16 | 2 | 4-14 | 240 | 100 | 6 | ||
| 20 | 150 | 105 | 75 | 55 | 16 | 2 | 4―14 | 270 | 100 | 8 | ||
| 25 | 160 | 115 | 85 | 65 | 16 | 2 | 4―14 | 270 | 125 | 10 | ||
| 32 | 180 | 135 | 100 | 78 | 18 | 2 | 4-18 | 280 | 160 | 14 | ||
| 40 | 200 | 145 | 110 | 85 | 18 | 3 | 4-18 | 350 | 160 | 20 | ||
| 50 | 230 | 160 | 125 | 100 | 20 | 3 | 4―18 | 400 | 320 | 35 | ||
| 65 | 290 | 180 | 145 | 120 | 22 | 3 | 8-18 | 530 | 360 | 50 | ||
| 80 | 310 | 195 | 160 | 135 | 99 | 3 | 8-18 | 560 | 400 | 65 | ||
| 100 | 350 | 230 | 190 | 160 | 24 | 3 | 8-23 | 618 | 450 | 88 | ||
| 125 | 400 | 270 | 220 | 188 | 28 | 3 | 8-25 | 675 | 450 | 115 | ||
| 150 | 480 | 300 | 250 | 218 | 30 | 3 | 8―25 | 743 | 560 | 148 | ||
| 200 | 600 | 360 | 310 | 278 | 34 | 3 | 12-25 | 850 | 640 | 293 | ||
| 250 | 650 | 425 | 370 | 332 | 36 | 3 | 12―30 | 975 | 270 | 720 | 380 | 455 |
| 300 | 750 | 485 | 430 | 390 | 40 | 4 | 16-30 | 1115 | 270 | 800 | 415 | 585 |
| 400 | 950 | 610 | 550 | 505 | 48 | 4 | 16-34 | 1380 | 280 | 900 | 465 | 1110 |
| 450 | 1050 | 660 | 600 | 555 | 50 | 4 | 20-34 | 1530 | 350 | 495 | 1350 | |
| 500 | 1150 | 730 | 660 | 610 | 52 | 4 | 20-41 | 1700 | 400 | 525 | 1470 |
JY41W-40P JY41Y-40P JY41W-40T
| DN | L | D | D1 | D2 | D6 | b | f | f1 | Z-d | H | H1 | DO | L1 | 重量(kg) |
| 15 | 130 | 95 | 65 | 45 | 40 | 16 | 2 | 4 | 4-14 | 240 | 100 | 6 | ||
| 20 | 150 | 105 | 75 | 55 | 5l | 16 | 2 | 4 | 4-14 | 270 | 100 | 8 | ||
| 25 | 160 | 115 | 85 | 65 | 58 | 16 | 2 | 4 | 4-14 | 270 | 125 | 10 | ||
| 32 | 180 | 135 | 100 | 78 | 66 | 18 | 2 | 4 | 4-18 | 280 | 160 | 14 | ||
| 40 | 200 | 145 | 110 | 85 | 76 | 18 | 3 | 4 | 4-18 | 350 | 160 | 20 | ||
| 50 | 230 | 160 | 125 | 100 | 88 | 20 | 3 | 4 | 4-18 | 400 | 320 | 35 | ||
| 65 | 290 | 180 | 145 | 120 | 110 | 22 | 3 | 4 | 8-18 | 530 | 360 | 50 | ||
| 80 | 310 | 195 | 160 | 135 | 121 | 22 | 3 | 4 | 8-18 | 560 | 400 | 65 | ||
| 100 | 350 | 230 | 190 | 160 | 150 | 24 | 3 | 4.5 | 8-23 | 618 | 450 | 88 | ||
| 125 | 400 | 270 | 220 | 188 | 176 | 28 | 3 | 4.5 | 8-25 | 675 | 450 | 115 | ||
| 150 | 480 | 300 | 250 | 218 | 204 | 30 | 3 | 4.5 | 8-25 | 743 | 560 | 148 | ||
| 200 | 600 | 375 | 320 | 282 | 260 | 38 | 3 | 4.5 | 12-30 | 850 | 640 | 293 | ||
| 250 | 650 | 445 | 385 | 345 | 313 | 42 | 3 | 4,5 | 12-34 | 975 | 270 | 720 | 380 | 540 |
| 300 | 750 | 510 | 450 | 408 | 364 | 46 | 4 | 4.5 | 16-34 | 1115 | 270 | 800 | 415 | 770 |
| 400 | 950 | 655 | 585 | 535 | 474 | 58 | 4 | 5 | 16-41 | 1425 | 280 | 900 | 465 | 1330 |
| 450 | 1050 | 680 | 610 | 560 | 524 | 60 | 4 | 5 | 20-41 | 1570 | 350 | 495 | 1550 | |
| 500 | 1150 | 755 | 670 | 612 | 576 | 62 | 4 | 5 | 20-48 | 1740 | 400 | 525 | 1670 |
注:
1.本網頁的氧氣截止閥結構、結構圖、尺寸、參數等主要性能參數,以及安裝尺寸圖、安裝尺寸表均隻適用於參考,詳細CAD圖、安裝圖、以及產品說明書請向賽泰閥門營銷人員索取。
2.由於編輯水平有限,錯誤和不妥之處在所難免,真誠希望您批評指正。
氧氣截止閥相關產品
下一頁:保溫截止閥
返回至本係列目錄:截止閥
上一頁:電動截止閥