HX型呼吸閥
產品概述
HX型係列呼吸閥是shi固gu定ding在zai儲chu罐guan頂ding上shang的de通tong風feng裝zhuang置zhi,以yi保bao證zheng罐guan內nei壓ya的de正zheng常chang狀zhuang態tai,防fang止zhi罐guan內nei超chao壓ya或huo超chao真zhen空kong合he儲chu罐guan遭zao受shou損sun壞huai,也ye可ke減jian少shao液ye體ti揮hui發fa損sun耗hao。呼hu吸xi閥fa根gen據ju國guo家jia(石油化工設計防火規範)(GB50160-92)的規定:“甲、乙類液體的固定頂罐,應設阻火器和呼吸閥”,而我國呼吸閥產品類型單一,還滿足了不石油化工各部門的需要,為了解決上述問題,我廠與中石化總公司北京設計院共同研製開發HX型係列新產品。上海賽泰泵閥有限公司生產的HX型係列呼吸閥具有類型多,規格齊全,結構緊湊、重量輕、通風量大、泄漏水等優點。產品有單呼閥、單吸閥、呼吸閥、各種結構形式均可與阻火器組合構造,也可配製所需的接管。HX型係列呼吸閥實為目前國內呼吸閥中的佼佼者,已成為中石化總公司工程建設部推薦產品。
代號說明
1、呼吸閥代號以HX表示,HXF為阻火呼吸閥代號。
2、呼吸閥類型代號以吸入和呼出口有否接管來分類,共8種,見表1。
| 代號 | 類型 | 代號 | 類型 |
| HX1 | 呼吸閥 | HXF1 | 阻火呼吸閥 |
| HX2 | 帶雙接管呼吸閥 | HXF2 | 帶雙接管阻呼吸閥 |
| HX3 | 帶呼入接管呼吸閥 | HXF3 | 帶吸入接管阻呼吸閥 |
| HX4 | 帶呼出接管呼吸閥 | HXF4 | 帶吸出接管阻呼吸閥 |
| HX5 | 單呼閥 | HXF5 | 阻火單呼閥 |
| HX6 | 單吸閥 | HXF6 | 阻火單吸閥 |
| HX7 | 帶接管呼出閥 | HXF7 | 帶接管阻火呼出閥 |
| HX8 | 帶接管吸入閥 | HXF8 | 帶接管阻火吸入閥 |
表示主體材料見表2
| 代號 | 主體材料 | 閥盤和閥座 | 閥密封件 |
| Ⅰ | ZG200-400 | 0Cr19Ni9 | F4 |
| Ⅱ | ZG0Cr18Ni9 | 和主體材料相同 | |
| Ⅲ | ZG0Cr18Ni9Ti | ||
| Ⅳ | ZG0Cr18Ni12Mo2Ti | ||
| Ⅴ | ZA1si7Mg |
標誌意義

操作壓力和使用環境溫度
呼出壓力:B、+980Pa C、+175Pa D、+4KPa E、+18KPa
吸入壓力:B、-295Pa C、-295Pa D、-0.5KPa
(操作壓力指標也可以由用戶指定)
使用環境溫度:-30℃~60℃
工作介質
汽油、煤油、柴油、芳烴、硫、空氣等,或其他石油化工物料,阻火類別的選用“HGJ21-89”選行,選ⅡA級或ⅡB級由用戶指定。
製造和檢驗標準
參照“SY7511-87”、“GB5908-86”等標準進行製造和驗收。
注:法蘭連接采用HG5010-58、PN1.0MPa,也可以根據用戶需要,按HGJ、JB、ANSI-B16.5,JIS等其它標準進行製造。
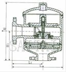
簡圖及外型連接尺寸

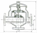
HX1型呼吸閥 DN50-400

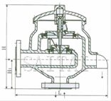
HXF1型阻火呼吸閥 DN50-400
| DN | 50 | 80 | 100 | 150 | 200 | 250 | 300 | 400 |
| H | 280/350 | 430/500 | 430/500 | 530/600 | 630/700 | 740/820 | 820/900 | 940/1020 |
| L | 300 | 450 | 450 | 650 | 850 | 1000 | 1100 | 1250 |

HX2型雙接管呼吸閥 DN50-250

HXF2型雙接管阻火呼吸閥 DN50-250
| DN | 50 | 80 | 100 | 150 | 200 | 250 |
| H | 280/350 | 430/500 | 430/500 | 530/600 | 630/700 | 740/820 |
| H1 | 110/180 | 180/250 | 180/250 | 220/290 | 260/330 | 320/400 |
| L | 300 | 450 | 450 | 650 | 850 | 1000 |

HX3型帶吸入接管呼吸閥 DN50-250

HXF3型帶吸入接管阻火呼吸閥 DN50-250
| DN | 50 | 80 | 100 | 150 | 200 | 250 |
| H | 280/350 | 430/500 | 430/500 | 530/600 | 630/700 | 740/820 |
| H1 | 110/180 | 180/250 | 180/250 | 220/290 | 260/330 | 320/400 |
| L | 310 | 450 | 450 | 635 | 800 | 950 |

HX4型帶呼出接管呼吸閥 DN50-250

HXF4型帶呼出接管阻火呼吸閥 DN50-250
| DN | 50 | 80 | 100 | 150 | 200 | 250 |
| H | 280/350 | 430/500 | 430/500 | 530/600 | 630/700 | 740/820 |
| H1 | 110/180 | 180/250 | 180/250 | 220/290 | 260/330 | 320/400 |
| L | 310 | 450 | 450 | 635 | 800 | 950 |

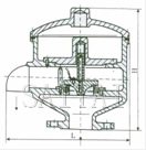
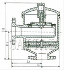
HX5型單呼閥 DN50-250

HXF5型阻火單呼閥 DN50-500
| DN | 50 | 80 | 100 | 150 | 200 | 250 | 300 | 400 | 500 |
| H | 250/320 | 400/470 | 400/470 | 470/540 | 550/620 | 620/700 | /780 | /900 | /1100 |
| L | 300 | 450 | 450 | 650 | 850 | 1000 | 1100 | 1250 | 1200 |

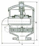
HX6型單吸閥 DN50-250

HXF6型阻火單吸閥 DN50-250
| DN | 50 | 80 | 100 | 150 | 200 | 250 |
| H | 270/340 | 400/470 | 400/470 | 470/540 | 550/620 | 620/700 |
| L | 300 | 450 | 450 | 650 | 850 | 1000 |

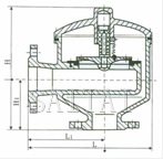
HX7型帶接管呼出閥 DN50-300

HXF7型帶接管阻火呼出閥 DN50-300
| DN | 50 | 80 | 100 | 150 | 200 | 250 | 300 |
| H | 250/320 | 400/470 | 400/470 | 470/540 | 550/625 | 620/700 | 700/780 |
| H1 | 110/180 | 160/270 | 160/270 | 200/270 | 250/320 | 290/370 | 320/400 |
| L | 300 | 420 | 420 | 520 | 650 | 760 | 880 |
| L1 | 165 | 250 | 250 | 320 | 400 | 480 | 550 |

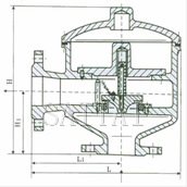
HX8型帶接管吸入閥 DN50-250

HXF8型帶接管阻火吸入閥 DN50-250
| DN | 50 | 80 | 100 | 150 | 200 | 250 |
| H | 250/320 | 400/470 | 400/470 | 470/540 | 550/625 | 620/700 |
| H1 | 110/180 | 160/230 | 160/270 | 200/270 | 250/320 | 290/370 |
| L | 300 | 420 | 420 | 520 | 650 | 760 |
| L1 | 165 | 250 | 250 | 320 | 400 | 480 |

HXF7Y型異徑帶接管阻火呼出閥

HX7Y型異徑帶接管呼出閥
| 產品型號 | 進入口徑×呼出口徑 | H | H1 | L | L2 |
| HX7Y | DN250×DN300 | 700 | 380 | 760 | 480 |
| HX7Y | DN80×DN100 | 470 | 270 | 420 | 250 |
| HXF7Y | DN100×DN150 | 480 | 280 | 420 | 250 |
| 備注 | “Y”表示進出口不一致,即異徑。 | ||||
注:連接法蘭符合JB78-59《鑄鐵法蘭》的規定
注:
1.本網頁的HX型呼吸閥結構、結構圖、尺寸、參數等主要性能參數,以及安裝尺寸圖、安裝尺寸表均隻適用於參考,詳細CAD圖、安裝圖、以及產品說明書請向賽泰閥門營銷人員索取。
2.由於編輯水平有限,錯誤和不妥之處在所難免,真誠希望您批評指正。
HX型呼吸閥相關產品
下一頁:波紋管阻火器
返回至本係列目錄:呼吸閥
上一頁:呼吸入孔