防爆電磁閥

ZCSB-25
特點
防爆電磁閥適用於易燃易爆介質,以及對爆炸性危險場所管路介質的自動切換。 產品經國家儀器儀表防爆安全監督檢驗站檢測合格,產品符合GB3836、1-83、GB3836、2-83標準。防爆合格證號為GYB01272適用條件: 環境場所:GB3836、1-83標準中屬於ⅡA、ⅡB級可燃性氣體且溫度組別T1、T2、T3組的爆炸性場所。 環境溫度:-10~+50℃,相對濕度不大於85%。
結構

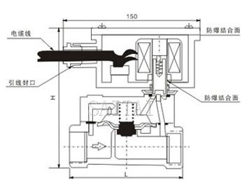
防爆電磁閥 內部結構外形尺寸圖
1、 防爆結構:隔爆型。防爆標誌;EX : dlBT4
2、 外殼防護等級為IP45,即防塵5級,防濺水4級。
3、 主閥配置:常規型,采用DF型主閥,型號為ZCSB-();耐溫性:采用RSPS主閥,型號為ZCSB-()R;采用PS主閥,型號為ZCSB-()P;耐腐蝕型:采用2W-J型主閥,型號為ZCSB-()J
主閥配置RSPS閥
型號為:ZCSB-()R 工作壓力:0~1.6Mpa
活塞式、直動式結構 介質溫度≤135℃

主閥配置PS閥
型號為:ZCSB-()P 工作壓力:0.03~1.6Mpa
活塞式、先導式結構 介質溫度≤135℃

主閥配置2W閥
型號為:ZCSB-()2W 工作壓力:0~1.0Mpa
膜片式、直動型結構 介質溫度≤80℃

主閥配置ZQDF閥
型號為:ZCSB-()Q 工作壓力:0~0.8Mpa
活塞式、直動型結構 介質溫度≤135℃

主閥配置2W閥圖2
型號為:ZCSB-()2W 工作壓力:0~1.0Mpa
膜片式、直動型結構 介質溫度≤80℃

澆封型防爆電磁閥
防爆合格證:GYB03617X
防爆標誌:EXMI/Ⅱ T4

澆封型德國納斯線圈
防爆電磁閥
主要技術參數
公稱通徑 5、15、20、25、32、40、50、65、80、100、125、150、200mm
公稱壓力 普通型:0.03-0.8Mpa,其他型:0-1.6 Mpa
工作介質 空氣、水、低粘度液體、油、及可燃易爆介質。其他型可通蒸汽。
介質溫度 普通型:0℃~80℃ 其他型:≤135℃
額定電壓 AC:380、220、36 DC:220、36、24
功率(AC) 12VA 15VA 25VA
型式 常閉式
注:
1.本網頁的防爆電磁閥結構、結構圖、尺寸、參數等主要性能參數,以及安裝尺寸圖、安裝尺寸表均隻適用於參考,詳細CAD圖、安裝圖、以及產品說明書請向賽泰閥門營銷人員索取。
2.由於編輯水平有限,錯誤和不妥之處在所難免,真誠希望您批評指正。
防爆電磁閥相關產品
下一頁:RSC飲水機電磁閥
返回至本係列目錄:電磁閥
上一頁:水用電磁閥